A Suburban Bungalow Gets a Cottage-Like Makeover

How a young firm called Design Architecture Everyday raised the roof, and comfort level, of an old bungalow in Mississauga
The word “innovation” probably doesn’t leap to mind when you think of the suburbs. But if your one-and-a-half-storey bungalow – complete with luscious gardens – needs contemporizing, inventiveness is the order of the day.

The bungalow before the reno looking from the backyard.

Another before photo taken from the driveway, showing the front of the house.
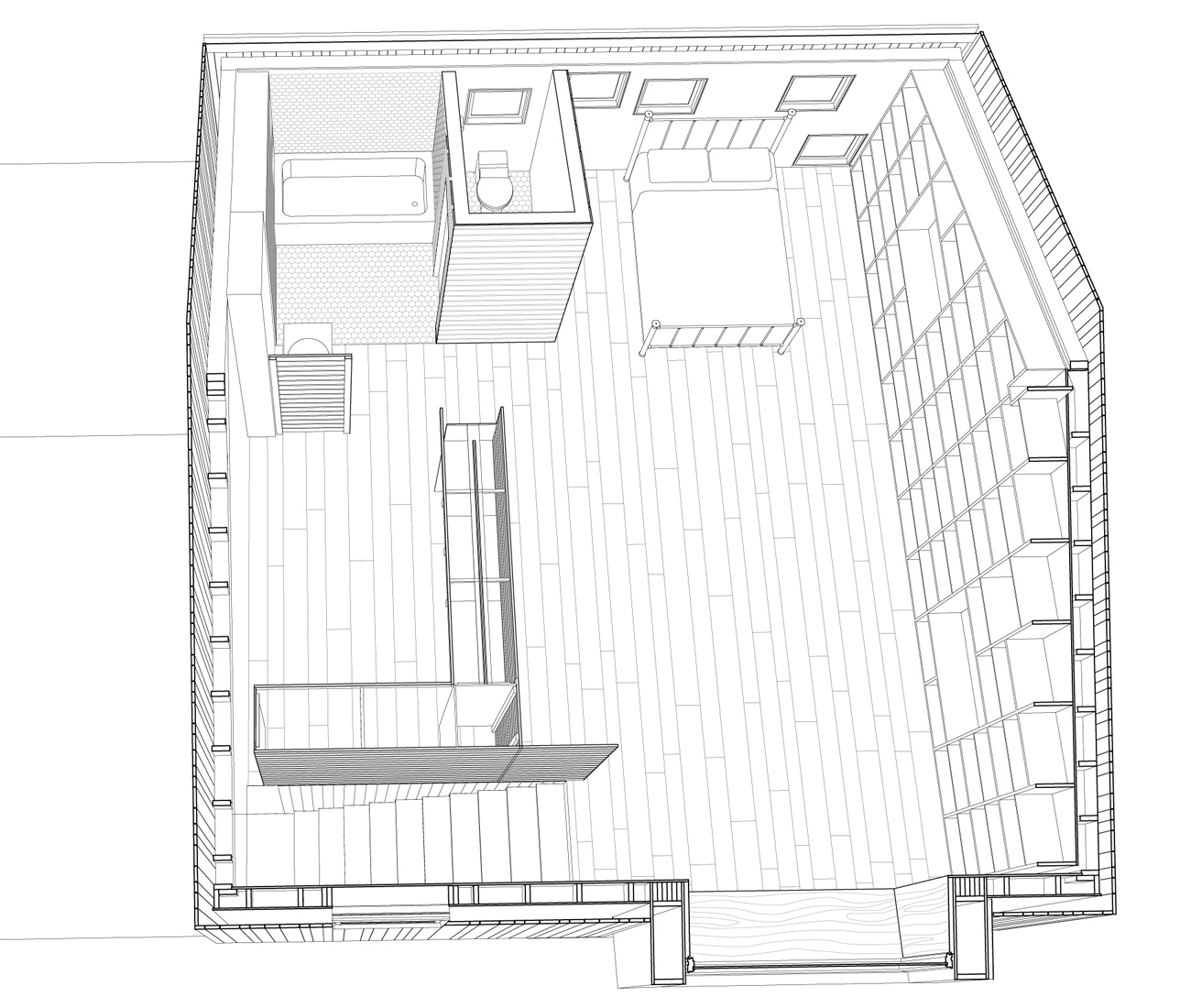
Architect Melanie Morris, along with David Long and Antoine Morris, partners at the small but busy studio Design Architecture Everyday, re-imagined the upper level of a home in Mississauga. The goal was to turn the 51-square-metre space crammed with family belongings into a cottage-like retreat with a bedroom, bathroom and living area.

Exterior view of a cabin-inspired bungalow addition in Mississauga with a pitched roof and reclaimed barnboard siding.
First, the walls of the flat-topped second storey were reconstructed into a pitched roofline that reaches three metres. Then, built-in shelving was added along the newly pitched wall. Within the open space, the team came up with a partition screen, clad in horizontal slats of pine, as a way to separate the media room from storage space, bathroom and bedroom.

The all-white palette is accented by blue accessories, a colour picked up from the seawater-aged flooring from Countrywood. Batlo faucet by Aquabrass; painted handrail.
Flooring throughout is hewn from 150-year-old maple logs that Countrywood, a company that refinishes antique wood, had recovered from seawater. Its natural blue-green tint inspired the use of blue accents to guide the eye through the otherwise cool white interior. An electric-blue faucet in the bathroom matches blue-painted dowels and the handrail leading upstairs.

Douglas fir–edged windows from Andersen at the front are positioned to afford select, leaf-framed views. A bay window overlooks the back garden.
Instead of ceiling fixtures, light is diffused via eight windows, all edged with Douglas fir, which glows gold when the sun beams in. From outside, the placement of five square panes appears almost erratic, though in fact two are positioned on either side of the brass bed and match the clients’ respective heights. The other windows afford snapshots to the outdoors rather than one continuous view. It’s an unconventional look within an aging neighbourhood, but the clients have warmed up to their new abode. “They are ecstatic about the project now,” says David Morris. So much so that Design Architecture Everyday‘s next project will be renovating the basement.

A bathroom and storage area are concealed by a partition instead of a full-height wall, to maintain the open-concept feel.

Instead of solid doors, the designers used sheer curtains to create private spaces.

The all-white palette is accented by blue accessories, a colour picked up from the seawater-aged flooring from Countrywood. Batlo faucet by Aquabrass; painted handrail.

To add interior airiness while preserving proportions, the bungalow’s flat-topped upper level was replaced with a pitched roof.The original white exterior siding was replaced by reclaimed barnboard from Nostalgic Wood. The bricks were painted matte grey.

Interior floor plan.
Be sure to also read “A Victorian in Parkdale Becomes a Scandinavian Chalet” another project by Design Architecture Everyday.
For more before and after goodness, head over to Vanessa Fong’s Warm & Woodsy Queen West Addition.